
INCH-POUND
MIL-PRF-27/147E
29 September 2009
SUPERSEDING
MIL-PRF-27/147D
20 July 1993
PERFORMANCE SPECIFICATION SHEET
TRANSFORMERS AND INDUCTORS
(AUDIO, POWER, AND HIGH-POWER PULSE),
INDUCTORS, AUDIO, HIGH Q
This specification is approved for use by all Depart-
ments and Agencies of the Department of Defense.
The requirements for acquiring the transformer described herein
shall consist of this specification sheet and MIL-PRF-27.
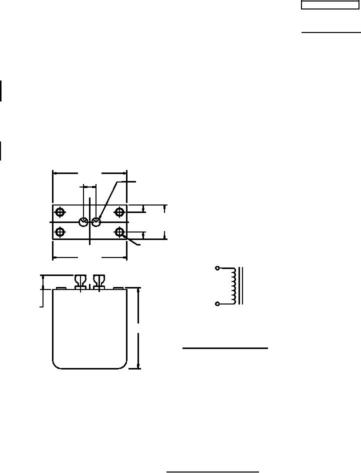
2.062
± .015
ST-1708 TERMINAL
.437
OR EQUIVALENT
± .030
Inches
mm
2 REQ'D
.015
0.38
.030
0.76
1.188
.138
3.51
.687
± .030
.266
6.76
.437
11.10
.687
17.45
.138-32 UNC-2B
1.188
30.18
2.562
INSERT 4 REQ'D
2.062
52.37
± .030
2.562
65.07
1
2.812
71.42
"X" H
"X" mA
"X" OHMS
.266
2
± .030
W V (PK) 350 V
(SEE TABLE I FOR VALUE OF "X" )
2.812
CIRCUIT DIAGRAM AND MARKING
NOTES:
1. Dimensions are in inches.
2. Metric equivalents are given for general information only.
3. Marking shall be on the side of the case.
4. Unless otherwise specified, tolerances on all dimensions shall be ±.015 inch (0.38 mm).
5. Electrical values shall be marked as specified in table I, as applicable.
FIGURE 1. Dimensions and configurations
AMSC N/A
FSC 5950
For Parts Inquires submit RFQ to Parts Hangar, Inc.
© Copyright 2015 Integrated Publishing, Inc.
A Service Disabled Veteran Owned Small Business