
INCH-POUND
MIL-PRF-27/247D
18 July 2008
SUPERSEDING
MIL-T-27/247C
3 August 1993
PERFORMANCE SPECIFICATION SHEET
TRANSFORMERS AND INDUCTORS,
(AUDIO, POWER AND HIGH-POWER PULSE),
TRANSFORMER, AUDIO FREQUENCY
This specification is approved for use by all Depart-
ments and Agencies of the Department of Defense.
Inactive for new design
after 14 February 1997
The requirements for acquiring the product described herein shall consist of this
specification sheet and MIL-PRF-27.
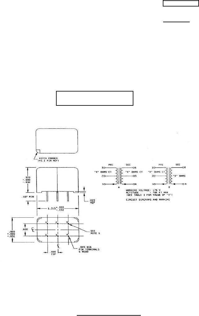
INCHES
MM
0.64
.025
0.81
.032
1.14
.045
4.75
.187
10.16
.400
15.24
.600
23.37
.920
23.62
.930
33.40
1.315
NOTES:
1. Dimensions are in inches.
2. Metric equivalents are given for general information only.
3. Unless otherwise specified, tolerance is ±.010 inch (0.25 mm)
4. Marking shall be on the sides and/or top of the case.
5. Electrical values shall be marked as specified in table I, as applicable.
6. Terminal numbers for reference only, not to be marked on unit.
FIGURE 1. Dimensions and configurations.
AMSC N/A
FSC 5950
For Parts Inquires submit RFQ to Parts Hangar, Inc.
© Copyright 2015 Integrated Publishing, Inc.
A Service Disabled Veteran Owned Small Business