
INCH-POUND
MIL-PRF-27/25C
28 April 2008
SUPERSEDING
MIL-PRF-27/25B
8 April 1992
PERFORMANCE SPECIFICATION SHEET
TRANSFORMERS, POWER, STEP DOWN, 3-PHASE
Inactive for New Design
after 23 May 1997
This specification is approved for use by all Depart-
ments and Agencies of the Department of Defense.
The requirements for acquiring the product described herein
shall consist of this specification sheet and MIL-PRF-27.
Inches
mm
0.38
.015
3.18
.125
4.52
.178
4.65
.183
6.35
.250
7.95
.313
14.27
.562
15.88
.625
28.58
1.125
44.45
1.750
69.85
2.750
76.20
3.000
117.48
4.625
130.18
5.125
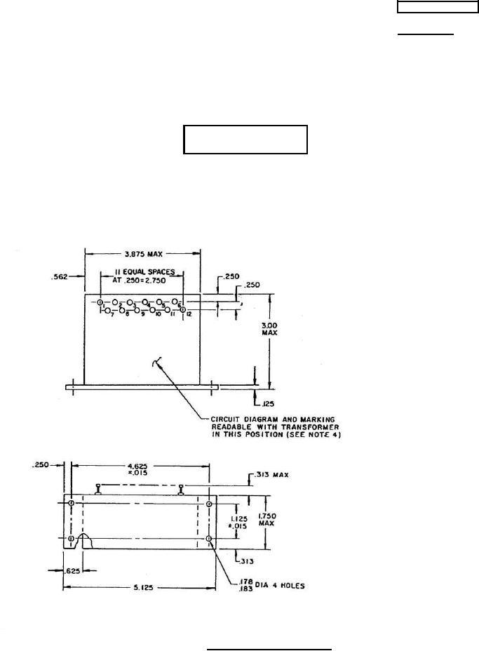
FIGURE 1. Dimensions and configuration.
AMSC N/A
FSC 5950
For Parts Inquires submit RFQ to Parts Hangar, Inc.
© Copyright 2015 Integrated Publishing, Inc.
A Service Disabled Veteran Owned Small Business