
MIL-PRF-21038/27E
Inches
mm
Inches
mm
.004
0.10
.200
5.08
.008
0.20
.250
6.35
.015
0.38
.275
6.98
.020
0.51
.34
8.6
.030
0.76
.350
8.89
.032
0.81
.375
9.52
.070
1.78
.400
10.16
.08
2.0
.500
12.70
.100
2.54
.625
15.88
.137
3.48
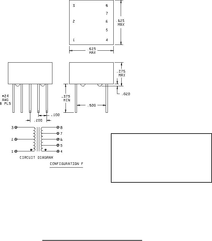
NOTES:
1. Dimensions are in inches.
2. Metric equivalents are given for general information only.
3. Unless otherwise specified, tolerance is ±.010 inch (0.25 mm).
4. Marking shall be on top of the case, unless space is insufficient then marking can appear on the
sides.
5. Terminal identification shall be marked on the transformer as shown.
6. Standoff location is for reference only.
FIGURE 1. Dimensions, configurations, and circuit diagrams - Continued.
8
For Parts Inquires submit RFQ to Parts Hangar, Inc.
© Copyright 2015 Integrated Publishing, Inc.
A Service Disabled Veteran Owned Small Business