
INCH-POUND
MIL-PRF-27/235E
17 June 2005
SUPERSEDING
MIL-T-27/235D
14 September 2000
PERFORMANCE SPECIFICATION SHEET
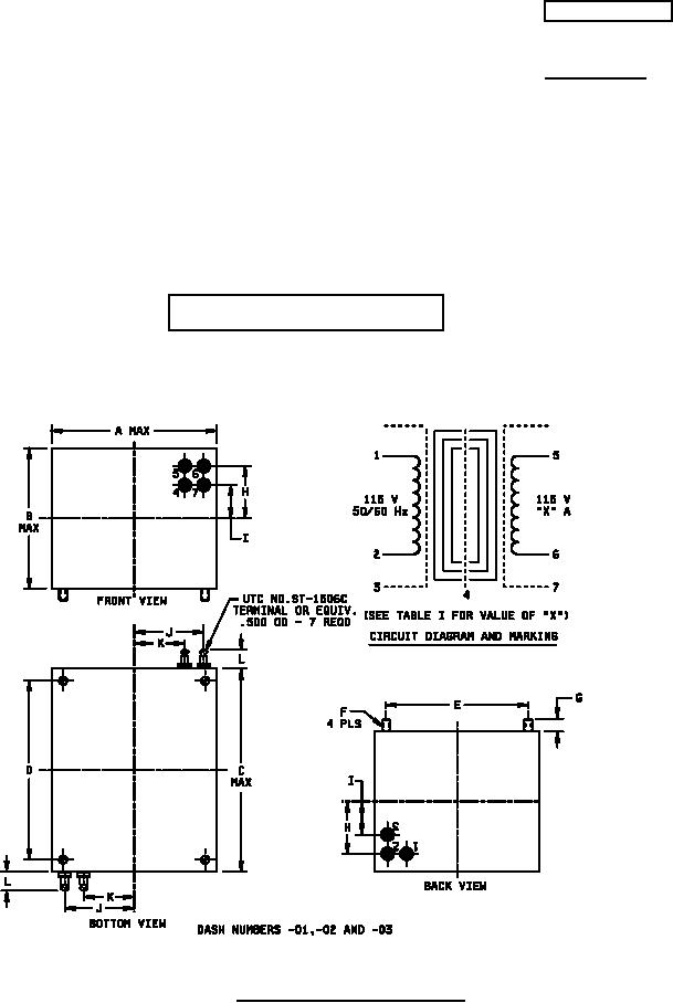
TRANSFORMERS, POWER, ISOLATION, SHIELDED
This specification is approved for use by all Depart-
ments and Agencies of the Department of Defense.
INACTIVE FOR NEW DESIGN
The requirements for acquiring the product described herein shall consist of this
specification sheet and MIL-PRF-27.
FIGURE 1. Dimensions and configurations.
AMSC N/A
FSC 5950
For Parts Inquires submit RFQ to Parts Hangar, Inc.
© Copyright 2015 Integrated Publishing, Inc.
A Service Disabled Veteran Owned Small Business