
MIL-PRF-27/342F
Inches
mm
Dimensions
Ltr
.005
0.13
.010
0.25
Inches
mm
.068
1.73
.090
2.29
58.7 ±.0.38
2.31 ±.015
G
.115
2.92
38.6 ±.0.38
1.52 ±.015
H
.169
4.29
44.5 ±.0.38
1.75 ±.015
J
.187
4.75
25.9 ±.0.38
1.02 ±.015
K
.200
6.08
46.0 ±.0.38
1.81 ±.015
L
.250
6.35
12.70 ±.0.79
.500 ±.031
M
.380
8.89
19.05 ±.0.79
.750 ±.031
N
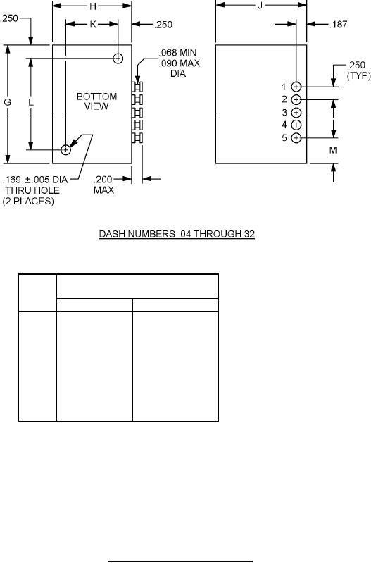
NOTES:
1. Dimensions are in inches.
2. Metric equivalents are given for general information only.
3. Marking shall be on the top and sides of the case.
4. Dimensional tolerance shall be ±.031 (0.79 mm) unless otherwise specified.
5. Dimensions G and H to be measured at top of transformer.
FIGURE 1. Dimensions and configurations - Continued.
2
For Parts Inquires submit RFQ to Parts Hangar, Inc.
© Copyright 2015 Integrated Publishing, Inc.
A Service Disabled Veteran Owned Small Business